
Ubicación
QUERCUS es un Proyecto desarrollado en la sierra de Madrid, cuyo objetivo es dar una oportunidad de vivir en un entorno natural, con el más elevado standard de calidad, diseño y sostenibilidad, en una población dotada de todos los servicios necesarios.
El Proyecto está ubicado sobre una parcela de 10.047 m² de suelo urbano, en la población madrileña de Guadarrama, en la Avda. de las Acacias Nº7, una de las más antiguas y emblemáticas zonas de la población. Con una masa arbórea de pinos y sequoias de gran porte, nuestro Proyecto se integra en este espacio, dando una oportunidad incomparable para vivir en un entorno natural.
La gran demanda de vivienda en la sierra madrileña, como consecuencia de la experiencia vivida por efecto de la pandemia COVID-19, ha hecho que la sierra de Madrid haya renacido como alternativa residencial, teniendo en la actualidad una gran demanda. La falta de un producto nuevo y de calidad, ha creado un marco de oportunidad muy destacado para la inversión en la zona.
Además, servicios como Hospital, Centros de Enseñanza, Estación Cercanías (Los Molinos), etc., ofrecen la posibilidad de un uso residencial tanto estacional como permanente.

Descripción del Proyecto
10 Viviendas de gran calidad en un sola planta, abiertas a la naturaleza, integradas en el entorno y eficientes. Dimensionadas para disminuir el esfuerzo que genera el mantenimiento de grandes jardines. Con zonas comunitarias complementarias.

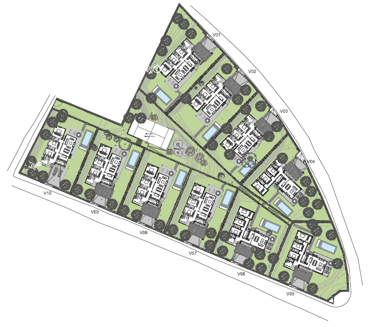
Catálogo Quercus Dorf
Planos
COMPLEJO RESIDENCIAL
VIVIENDAS
Memoria de calidades
Diseño General
Todas las viviendas se diseñan en planta baja. Para el máximo aprovechamiento de la luz y el sol todos los porches tienen una orientación sur.
Distribución
Las viviendas constan de vestíbulo de entrada con armario empotrado, aseo de cortesía para visita, cocina, salón principal, dormitorio principal con vestidor y baño en suite, dos dormitorios más con armarios empotrados y un estudio-despacho con baño completo. Este despacho en función de las necesidades de cada cliente podría ser un dormitorio adicional. Consta también la planta de otro baño completo y una zona independiente de lavandería, tendedero interior e instalaciones.
En la zona de acceso a la vivienda todas las parcelas disponen de un aparcamiento en superficie para dos vehículos bajo pérgola.
En la zona exterior, las viviendas disponen de un amplio porche conectado con el salón, así las viviendas se prolongan hacia la piscina privada (opcional) y el jardín, creando un espacio que conecta el interior con el exterior.
Pavimentos
Para conseguir la continuidad interior-exterior y favorecer la eficiencia del suelo radiante se ha diseñado todo el pavimento de la vivienda con un único material. El material seleccionado es un solado porcelánico rectificado de gran formato con acabado pétreo de alta calidad.
Pinturas
Toda la vivienda ira acabada con falsos techos continuos y pintura plástica lisa en paredes y techos a elegir.
Carpintería interior
Las puertas de acceso a la vivienda serán de seguridad.
Las puertas interiores de paso serán de DMF macizo lacado en color blanco, cercos del mismo material y herrajes de acero.
Armarios empotrados suelo-techo lacados en blanco. Las carpinterías se integrarán con molduras y rodapiés del mismo acabado.
Carpintería exterior
Se instalarán carpinterías de primera calidad con RPT y acristalamientos dobles con cámara deshidratada intermedia tipo Climalit, que garanticen la eficiencia energética y reduzcan al máximo las pérdidas de calor, favoreciendo así el confort interior y ahorro energético.
Los ventanales del salón serán de dimensiones tales que permitan establecer continuidad espacial y visual con el jardín.
En los dormitorios se instalarán persianas de aluminio de color a juego con las ventanas integradas en las mismas.
Fachada
Las fachadas se ejecutarán con solución constructiva que garantice el total aislamiento energético de la envolvente de la vivienda, de manera que aseguremos la eficiencia energética conjunta.
El acabado de las fachadas será una combinación de piedra natural y un revestimiento con acabado en pintura para exteriores de primera calidad de color blanco, manteniendo las viviendas una imagen tradicional, pero con un diseño actual y moderno.
Estructura
Las cimentaciones y estructura principal se ejecutarán de acuerdo con el estudio geotécnico y las especificaciones de los proyectos técnicos, empleando hormigones y aceros de resistencia y características adecuadas, siempre de acuerdo con la normativa vigente.
Las características técnicas de los materiales empleados y su correcta ejecución en obra otorgan a la edificación el aislamiento térmico y acústico que mejorará el confort y eficiencia energética de las viviendas.
Divisiones interiores
Las distribuciones interiores de las viviendas se ejecutarán con albañilería tradicional, de esta manera garantizamos la robustez de los tabiques internos.
Dichos tabiques se rematarán con enfoscados de yeso y pintura plástica lisa.
Sostenibilidad energética
La eficiencia energética de las viviendas aumenta a medida que minimizamos el uso de las energías convencionales, a fin de ahorrar y hacer un uso racional de las mismas.
En el diseño de las viviendas se han aplicado una serie de factores para conseguir una mayor eficiencia energética que nos hace alcanzar la calificación A, tales como mejora del aislamiento térmico de la envolvente del edificio, aumento de la eficiencia del sistema de ventilación, reducción de las pérdidas de calor mediante la introducción de recuperadores de calor e introduciendo el uso mayoritario de las energías renovables como la aerotermia y el suelo radiante-refrescante.
Agua caliente, calefacción-climatización y ventilación
Se dotará a las viviendas de un sistema de aerotermia para la producción de agua caliente sanitaria, calefacción-climatización procurando un mayor rendimiento energético lo que redundará en un menor consumo.
La emisión de calor para calefacción se realizará mediante suelo radiante regulando la temperatura de la calefacción con termostato programable (ver domótica). Este sistema de emisión de calor supone un ahorro en el consumo energético frente a los sistemas tradicionales ya que la temperatura de circulación del agua es sensiblemente menor. Además, garantiza un mayor confort en la vivienda por su reparto uniforme del calor, así como un aire más saludable por mantener un nivel de humedad adecuado evitando producir sequedad en el ambiente o la proliferación de ácaros, disminuyendo además las corrientes de aire que favorecen la aparición de polvo.
De la misma forma, el sistema de climatización será a través de suelo refrescante, sistema que proporciona las mismas ventajas y beneficios que se han descrito para suelo radiante.
En cada vivienda se instalará un sistema de ventilación individual con recuperadores de calor que permitirán disponer de un aire limpio, renovado y saludable de forma permanente en la vivienda además del ahorro energético, favoreciendo además que la promoción disponga de una calificación energética máxima, lo que redundará en viviendas energéticamente muy eficientes, con menores gastos de calefacción y climatización y un mayor grado de confort.
La instalación de aerotermia podrá completarse opcionalmente con un sistema de captación de energía solar para fomentar el autoconsumo, mediante paneles fotovoltaicos y un acumulador de electricidad.
Todas las viviendas dispondrán de la preinstalación para cargador de vehículo eléctrico. Opcionalmente se ofrece la posibilidad de instalar el poste para recarga exterior.
Domótica (opcional)
Se ofrece la posibilidad de dotar a cada vivienda con una instalación domótica basada en sistema KNX o similar, con pantalla digital a color para gestión de elementos y dispositivos.
Mediante este sistema se produce el manejo de la calefacción-climatización, con control por zonas de suelo radiante/refrescante incluyendo sondas de temperatura para cada una. La pantalla de control domótico hace la función de termostato general e incluye la posibilidad de editar programaciones horarias.
Queda integrada la función del video portero con visualización de la llamada y apertura desde la pantalla o mediante la aplicación instalada en el dispositivo móvil desde el interior o exterior de la vivienda.
El funcionamiento es en remoto y desde dentro de la vivienda mediante app. (iOS y Android), pudiendo sincronizar con un número ilimitado de dispositivos móviles.
Este sistema puede ser ampliado con diferentes funciones adicionales.
Fontanería
Las instalaciones de fontanería de agua fría y caliente se ejecutarán según normativa vigente. Se dispondrán llaves de corte general en cada vivienda, así como en cocinas, baños y aseos.
Toda la instalación estará convenientemente aislada para minimizar el riesgo de congelaciones en tuberías.
Todas las griferías empleadas incorporan sistemas de ahorro de agua y energía para un uso más eficiente de los recursos lo que redunda en un menor consumo de los mismos.
Electricidad y Comunicaciones
La instalación de la vivienda y el grado de electrificación cumplirán el Reglamento electrotécnico de Baja Tensión. La vivienda se dotará de luminarias LED empotradas.
Todos los dormitorios contarán con un número suficiente de tomas de corriente y teléfono para la conexión de ordenadores e Internet.
Se dotará a la vivienda de los servicios regulados en el Reglamento de Infraestructuras de Telecomunicaciones, Telefonía, R.D.S.I., T.V. y F.M., con tomas en salón y dormitorios.
En las cocinas se dispondrá de toma de T.V.
Los porches estarán dotados de puntos de luz, así como tomas de corriente y además se instalará toma de T.V.
En el exterior, las viviendas contaran con iluminación ornamental.
Cocinas
Completamente equipadas con muebles bajos y altos, incluyendo campana extractora, placa de inducción, horno y fregadero encastrado con grifo extraíble.
Encimera en piedra natural o similar. Frente sobre encimera hasta altura de muebles del mismo material.
El resto de las paredes de la cocina irán pintadas con la misma pintura plástica lisa del resto de la vivienda.
Se podrá elegir entre dos opciones de acabados y mobiliario en cocinas.
Baños
Aparatos sanitarios en porcelana vitrificada de color blanco y diseño actual, siendo el inodoro con asiento de caída amortiguada y cisterna de doble descarga para facilitar el ahorro de agua.
El baño principal dispondrá de doble lavabo sobre encimera con mueble y en los baños secundarios de un lavabo encastrado en mueble, ambos con espejo. Aseo con lavabo y espejo.
Todas las griferías serán de alta gama, siendo termostática en duchas y bañera del dormitorio principal.
El revestimiento de las paredes se realizará con una combinación de cerámica rectificada gran formato en la zona de duchas/bañera y pintura esmalte sintético en el resto.
Se podrá elegir entre dos opciones de acabados diferentes en el baño principal y en los baños secundarios, de cuidado diseño y calidad.
Zonas comunes
La calle interior del residencial que da acceso a las viviendas está concebida como espacio amplio de relación y de paseo, con zonas ajardinadas que dotan a la urbanización de un carácter singular y único.
Además, los espacios comunes dispondrán de una pista de Pádel y zona de juegos para niños.
Para estos espacios comunes de exterior se utilizarán distintos acabados y materiales de máxima calidad y se realizará un cuidado diseño del ajardinamiento, generando un ambiente distinguido y acogedor.
Seguridad
El perímetro de la finca está cerrado y existe la posibilidad opcional de instalar un sistema de detección en los límites de parcela, que permitirá proteger la zona y detectar la intrusión.
Jardines
Los jardines interiores son espaciosos, con varias zonas de disfrute exterior: descanso, terraza, comedor, solárium y la posibilidad de disfrutar de piscina privada (opcional).
Orientación y Soleamiento
Las viviendas tienen una gran terraza-porche dándole continuidad al salón. Así las viviendas se prolongan hacia la piscina y el jardín creando un espacio moderno y contemporáneo. Todas las viviendas están orientadas con los porches al sur para aprovechar al máximo la luz y el sol.
Galería de imágenes




